Обяви 0 За нас Контакти
Продава КЪЩА
град Варна, м-т Пчелина
275 000 €
537 853.25 лв.

(1 752 €, 3 426.61 лв./m2)
Не се начислява ДДС
История на цената
Коригирана в 11:23 на 8 април, 2026 год.
Обявата е посетена 135 пъти.
Площ:
157 m2
Двор:
400 m2
Етаж:
2
Строителство:
Тухла, Ще бъде въведен в експлоатация 2026 г.

Описание на имота:


🏡НОВА ДВУЕТАЖНА КЪЩА СЪС СТРАХОТНА ПАНОРАМА КЪМ ВАРНЕНСКОТО ЕЗЕРО м-т Пчелина

Предлагаме за продажба новострояща се къща с модерна архитектура и впечатляваща гледка към град Варна и Варненското езеро. Локацията комбинира тишина и уединение с бърз достъп до центъра. В близост има супермаркет и основни пътни връзки.

📐 Характеристики:

РЗП: 147 м²
Парцел: 400 м²
Строителство: тухла
Две паркоместа в двора
Озеленен двор с автоматична поливна система

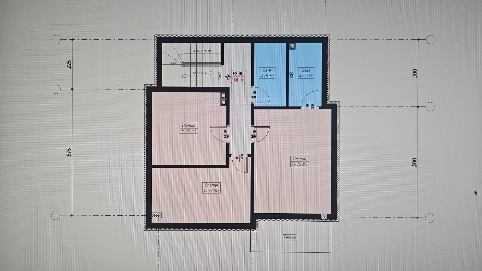
🏠 Разпределение:

Първи етаж: входно антре, просторна дневна с кухненски бокс и трапезария, санитарно помещение, килер, вътрешно стълбище

Втори етаж: три спални (родителската със собствена баня и тераса), втора баня с тоалетна

💡 Предимства:

Панорамна гледка към морето, града и езерото
Модерен стил с функционални разпределения
Възможност за завършване до ключ по индивидуален вкус

📞 Свържете се с нас за допълнителна информация и оглед.

Цена: 275 000 евро

Референтен номер: 13864

Милен Георгиев

0887 222 477
Особености
Тухла
За контакт:
0887222477
Брокер:
Милен Георигев
0887222477
Още оферти от брокера: Продава | Дава под наем | Купува | Наема
Агенция:
ЛАЙЪНС ГРУП
0887222477 / 0890158711
ЛАЙЪНС ГРУП logo
Медал за прослужено време
В imot.bg от 2013 г.
lionsgroup.imot.bg
Адрес:
област Варна, гр. Варна, ул. Дубровник 48; бул. Сливница 165 ет.1 ат.1
http://lionsgroup.bg
ИЗПРАТИ ЗАПИТВАНЕ
ИЗПРАТИ ЗАПИТВАНЕТО

Продава КЪЩА
град Варна, м-т Пчелина
Обява: 1j175500335441711

275 000 €
537 853.25 лв.
История на цената
(1 752 €, 3 426.61 лв./m2)

Не се начислява ДДС
ЗАПАЗИ ОБЯВАТА

Местоположение: град Варна, м-т Пчелина

Допълнителни данни за имотите в района и сравнение с други райони

Покажи

Период

и 5 месеца

* Средните цени са определени чрез медианна стойност